施設紹介

ごあいさつ

代表写真

日頃より当施設の運営にあたりましては、ご利用者様をはじめご家族様、地域の皆様、事業所様等、関係各位の皆様方から温かいご支援とご協力を頂いておりますことを心より御礼申し上げます。
2004年10月に「デイサービスセンターはまみの里」として片田の地にスタートして以来2024年には20周年を迎えることが出来ました。これも皆様方のご支援ご協力の賜物と心より感謝致しております。

創業者浜口純一氏の意思である「地域の皆様に喜んでいただける施設」を創業以来引き継いできたはまみの里ですが、これからも地元の皆様には安心して任せていただける施設、ご利用者様の皆様には毎日楽しく過ごせていただける施設、事業所様には信頼していただける施設としてご利用いただけるよう職員一同一丸となって取り組んでまいりますので、引き続き皆様のご指導ご鞭撻を賜りますようお願い申し上げます。

                                            代表取締役社長  田口 リキ 



施設概要

1階

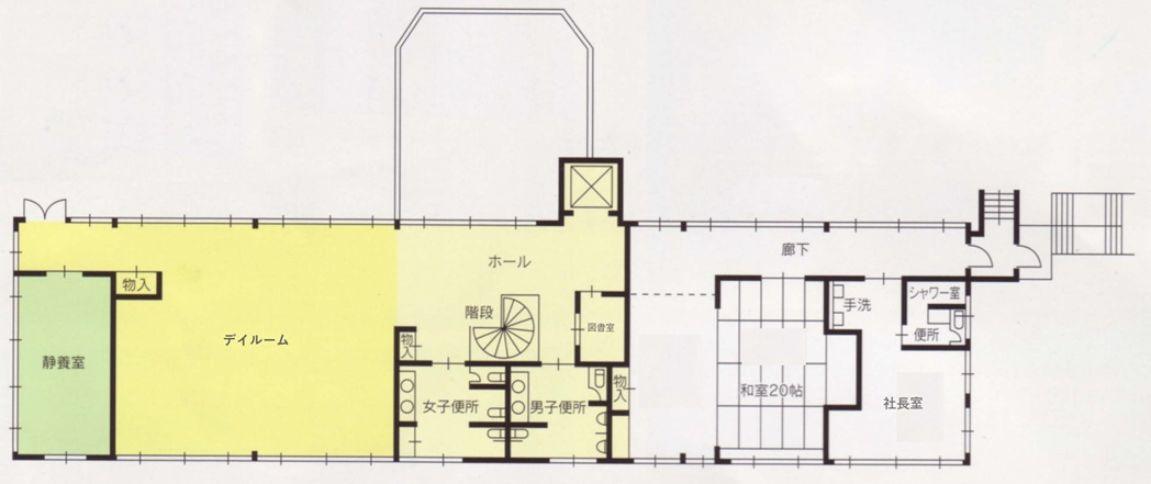
施設案内

 

2階

施設案内

 



創立
2004年10月
法人名
株式会社 はまみの里
名称
デイサービスセンターはまみの里
事業所番号
通所介護:2472901764
介護予防:24A2900462
所在地
〒517-0701 三重県志摩市志摩町片田4番地23
TEL   0599-84-3151/FAX   0599-84-3152
✉   hamaminosato@hamami.co.jp
セールス、人材派遣会社等からのご連絡は一切受け付けておりませんのでご遠慮下さい。
サービス実施地域
志摩町(間崎地区除く)、大王町、阿児町
定員
1日 34名
建物の構造
鉄骨造2階建て
施設床面積
166.48㎡(食堂及び機能訓練室の総合計面積)
建物の延床面積
828.49㎡
職員(2025年12月現在)
*管理者(1名)   *生活相談員(3名)   *介護職員(15名)   *看護師(5名)   *機能訓練指導員(5名)
*印は職務兼任
 マッサージ師(1名)   送迎員(5名)   事務員(1名)